このページを印刷する
- 価格
-
1億5,000万円
- 間取
-
7SLDK
- 坪単価
- 73万円
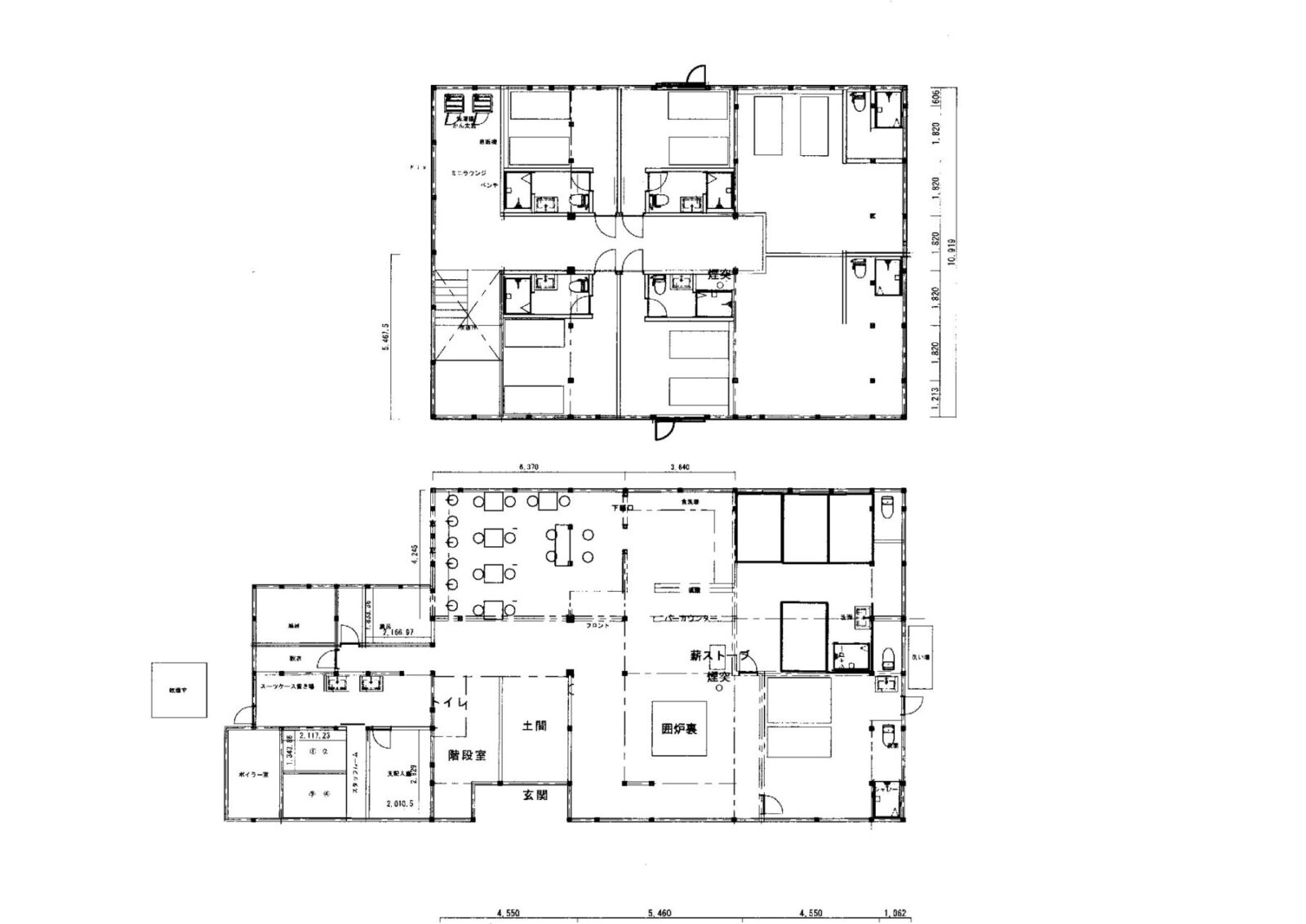
| 所在地 | 長野県北安曇郡白馬村神城1079-2 |
|---|---|
| 建物名 | <佐野>和風ブティックホテル |
| 交通 |
|
| 特徴 |
| 築年月 | 新築/中古 | 中古 | |
|---|---|---|---|
| 面積 | 計測方式 | ||
| バルコニー | 向き | ||
| 建物階数 | 地上2階 | 所在階 | |
| 部屋番号/区画番号 | --- | 総戸数/総区画数 | --- |
| 建物構造 | 木造 | ||
| 敷地全体面積 | 延べ床面積 | 341.48m²(103.29坪) | |
| 間取内容 | |||
| 駐車場 | 複数台可 |
取引態様 | 仲介 |
| 引渡/入居時期 | 即時 | 現況 | 居住中 |
| 地目 | 宅地 | 用途地域 | 無指定 |
| 都市計画 | 非線引き区域 | 地勢 | 平坦 |
| 土地面積 | 678.40m²(205.21坪) | 土地面積計測方式 | 公簿 |
| 建ぺい率 | 60% | 容積率 | 200% |
| 土地権利 | 所有権 | 接道状況 | 一方 |
| 接道方向1 | 東 | 接道間口1 | 8m |
| 接道種別1 | 公道 | 接道幅員1 | 4.5m |
| 周辺環境 | |||
| 設備・条件 |
|
||
| 物件カテゴリー | |||
| 自社物 | 自社物 | 状態 | 売出中 |
| 物件番号 | 080423 | ||
| 情報登録日 | 2026年4月23日 | 情報更新日 | 2026年4月29日 |
物件掲載内容と現況に相違がある場合は現況を優先といたします。
物件動画
物件周辺マップ
ご注意
- 物件によっては正確な位置を示していない場合がございます。
- 現況が表示された内容と異なる場合は現況優先といたします。
- 表示されてる地図はOpenStreetMapより提供されてるデータに基づいたものであり、表示内容についての責任は負いかねます。

























